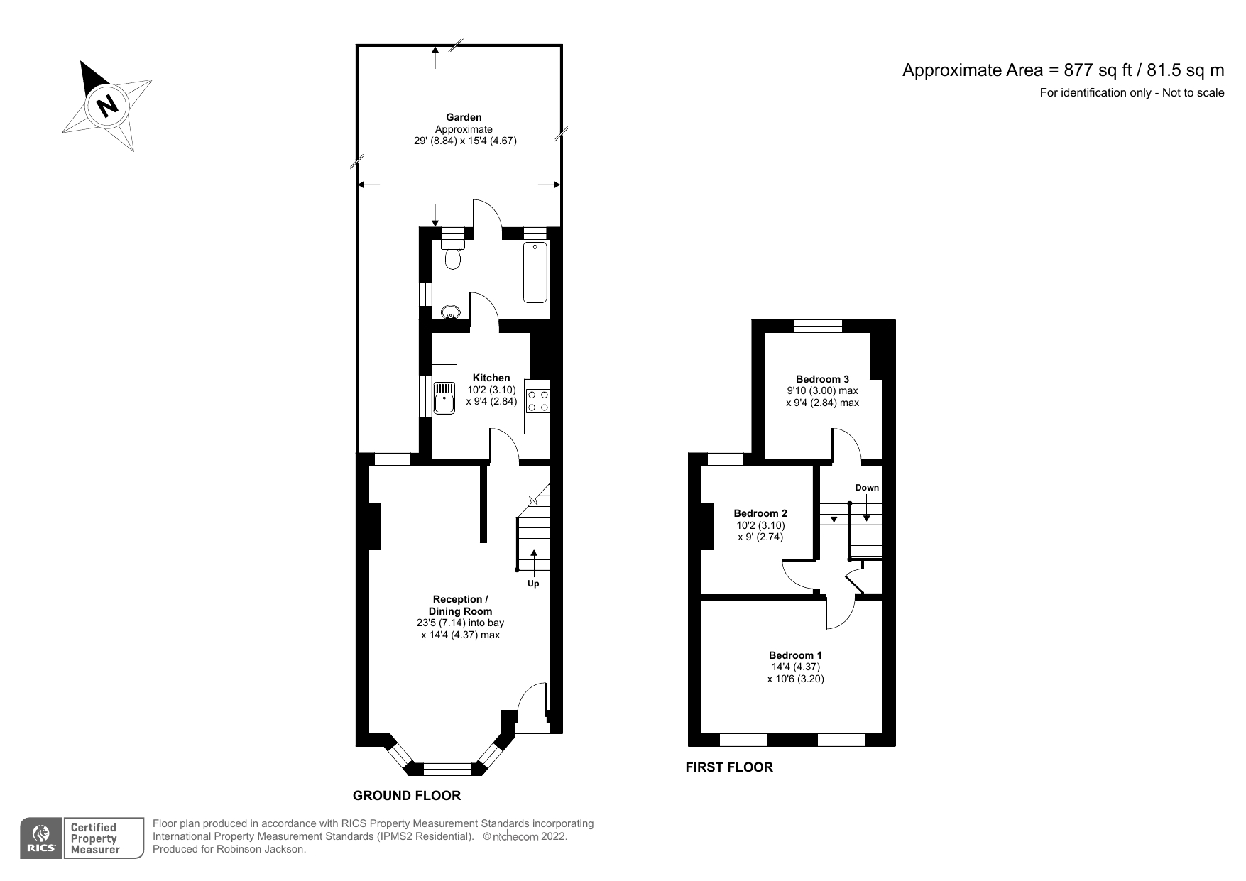
Property Description
Wonderful terraced house offered chain free with three bedrooms, pleasant rear garden, double glazing, ample storage, entry phone, in need of TLC offering fantastic potential set within a popular location, excellently located for Sydenham Station, conveniently located for High Street and the award winning Mayow Park
- Three Bedrooms
- Terraced House
- Chain Free
- Freehold
- Pleasant Rear Garden
- Double Glazing
- Ample Storage
- Entry Phone
- In Need of TLC
- Fantastic Potential
- Excellently located for Sydenham Station
- Conveniently located for High Street and the award winning Mayow Park
Rooms
Entrance HallDouble glazed window, radiator
LoungeDouble glazed window to front, under-stairs storage, radiator
KitchenSingle glazed windows to front and side, range of wall and base units, wood block work surface, stainless steel sink with drainer, space for oven and fridge freezer, plumbed for washing machine, wood flooring, radiator
Master BedroomDouble glazed window to front, built in wardrobes, wood flooring, radiator
Bedroom TwoSingle double glazed window to rear, built in wardrobes, carpet, radiator
Bedroom ThreeSingle glazed window to rear, carpet, radiator
BathroomSingle glazed window to side, panelled bath, wash hand basin, low flush wc, tiled flooring, radiator, shaving/dryer power point
