Property Description
GUIDE PRICE £300,000-£350,000
Situated in a sought-after residential location, this well-presented two-bedroom mid-terraced property on Lodding Salts Road offers stylish, modern living combined with everyday practicality. With the added benefit of an off-road parking space to the front, this home is perfect for first-time buyers, downsizers, or investors looking for a move-in ready property in a convenient setting.
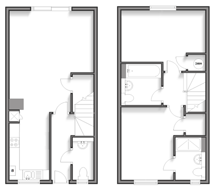
The ground floor comprises a welcoming entrance hall with a downstairs WC, leading to a modern fitted kitchen located at the front of the property. The kitchen features a practical layout with ample storage and integrated appliances, making it an ideal space for cooking and entertaining. To the rear, the bright and generously sized living/dining room spans the full width of the property, with large patio doors that open directly onto the private rear garden, creating a seamless indoor-outdoor living experience.
Upstairs, the first floor offers two well-proportioned bedrooms. The master bedroom, located at the rear, benefits from its own en-suite shower room, while the second double bedroom is positioned at the front and has easy access to the modern family bathroom. The thoughtful layout ensures comfort and privacy for residents and guests alike.
Externally, the property features a private, enclosed rear garden that is easy to maintain, providing the perfect setting for outdoor dining, gardening, or simply relaxing. At the front, the off-road parking space offers convenience and peace of mind, particularly in this popular area.
Lodding Salts Road is well-placed for local amenities, including shops, schools, and leisure facilities, as well as excellent transport links by road and rail. This attractive and modern home is ready to move straight into, and early viewing is strongly recommended to fully appreciate all it has to offer.
- Perfect First Time Buy
- Close to Amenities
- Modern Throughout
- En-Suite Bedroom
- Downstairs W.C.
- Off Road Parking
- South Facing Garden
Rooms
Hall 3.58m x 1.04mWood floor. Radiator.
Ground Floor WC 2.34m x 1.07mDouble glazed frosted window to front. Low level WC. Wash hand basin. Tiled floor. Heated towel rail.
Kitchen/ Diner 8.92m x 4.2mDouble glazed window to front. Double glazed doors to rear. Wood floor. Radiator. Integrated oven, hob, fridge/ freezer, dishwasher and sink. Wall and base level cupboards with worktops over. Spotlights.
Landing 1.45m x 1.12mCarpet.
Master Bedroom 3.73m x 3.05mDouble glazed window to front. Carpet. Radiator. Built in cupboard.
En-Suite 2.06m x 1.55mDouble glazed frosted window to front. Tiled floor and walls. Heated rail. Low level WC. Wash hand basin. Shower cubicle.
2nd Bedroom 4.2m x 3.1mDouble glazed window to rear. Radiator. Carpet. Built in cupboard.
Bathroom 2.06m x 1.9mTiled floor and walls. Heated towel rail. Low level WC. Wash hand basin. Panelled bath. Shower.
