Property Description
*** Guide Price £325,000-£350,000 ***
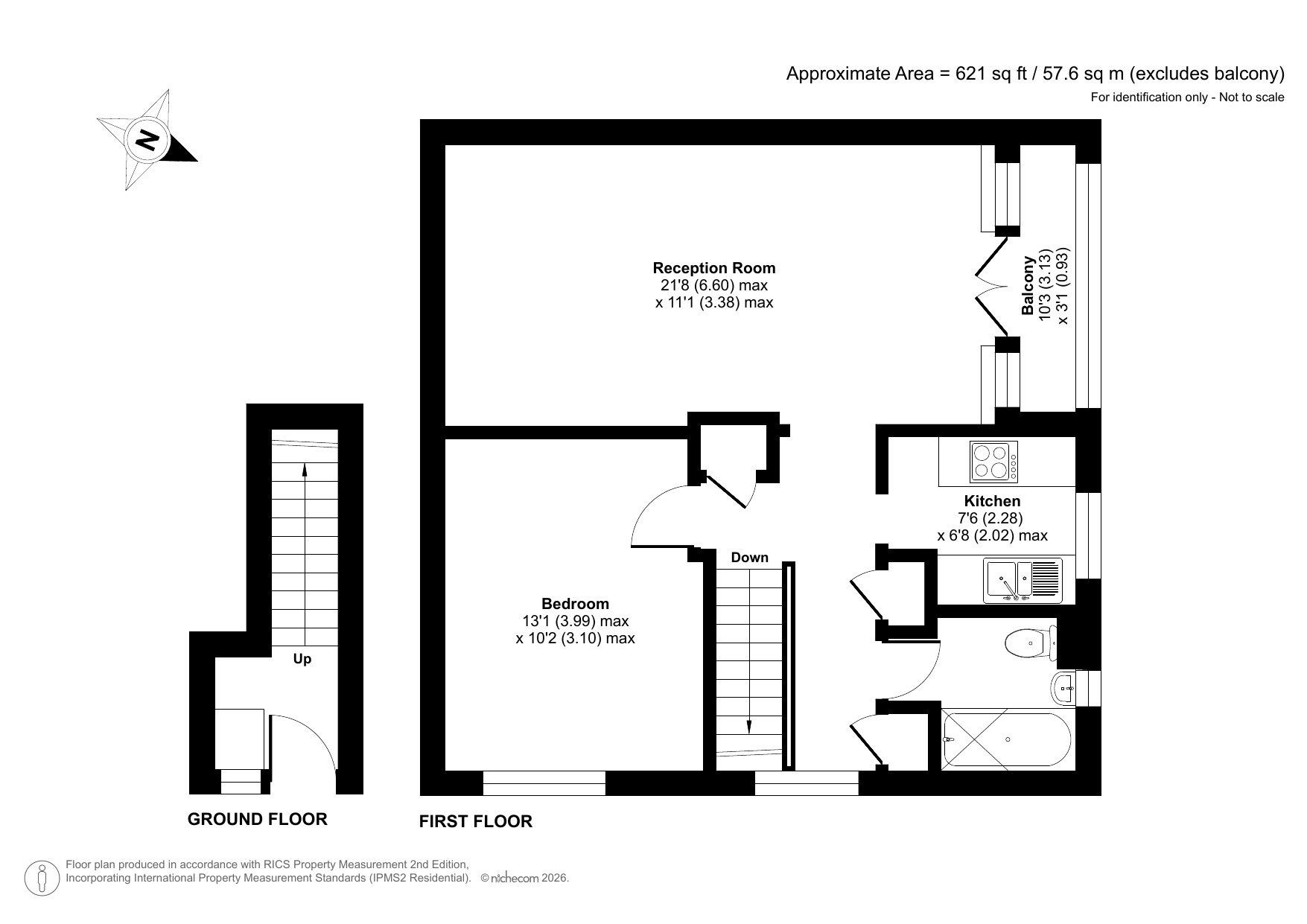
Spacious first floor maisonette located in a quite cul de sac moments from Sydenham high street and station.
Benefiting from 21' lounge with balcony, 13' bedroom, share of freehold, pleasant communal garden, total floor area 56sqm and being sold with no onward chain.
Ideally located for Sydenham high street and station and within walking distance of Crystal Palace Park and the award winning Mayow Park.
- Purpose built maisonette
- 21' Lounge with balcony
- 13' Bedroom
- Pleasant communal garden
- Total floor area 56sqm
- Share of freehold
- No chain
- Ideally located for Sydenham high street and station
- Within walking distance of Crystal Palace Park and the award winning Mayow Park
Rooms
Entrance HallPart opaque glazed wooden entrance door, storage cupboard, carpet, stairs to first floor.
LandingDouble glazed window to front, radiator, three storage cupboards, carpet, coved ceiling, access to loft.
LoungeDouble glazed double doors to balcony, radiator, wooden flooring, coved ceiling.
KitchenDouble glazed window to side, range of fitted wall and base units with work surface over, one and a half bowl stainless steel sink unit with mixer tap, space for electric cooker, space for fridge/freezer, plumbing for washing machine, vinyl flooring, part tiled walls, textured ceiling.
BedroomDouble glazed window to front, wooden flooring, dado rail, coved ceiling.
BathroomOpaque double glazed window to side, heated towel rail, three piece bathroom suite comprising of: panelled bath with separate taps and electric power shower over, pedestal wash hand basin with separate taps and low level wc, tiled flooring, part tiled walls, wall mounted electric heater, textured ceiling.
Communal GardenMainly laid to lawn, mature shrub borders, path.
