Property Description
Beautiful two-bedroom split-level garden flat for sale in Sydenham, SE26
A bright and spacious two double bedroom split-level maisonette featuring stunning floor-to-ceiling windows, a private patio garden and a large open-plan living and dining area with a stylish fitted kitchen and central island - perfect for entertaining.
Additional highlights include a separate utility room, guest WC and a long lease. The property is set within a modern, attractive development ideally located for Sydenham Station, local shops, cafés and the award-winning Wells Park.
- Split level maisonette
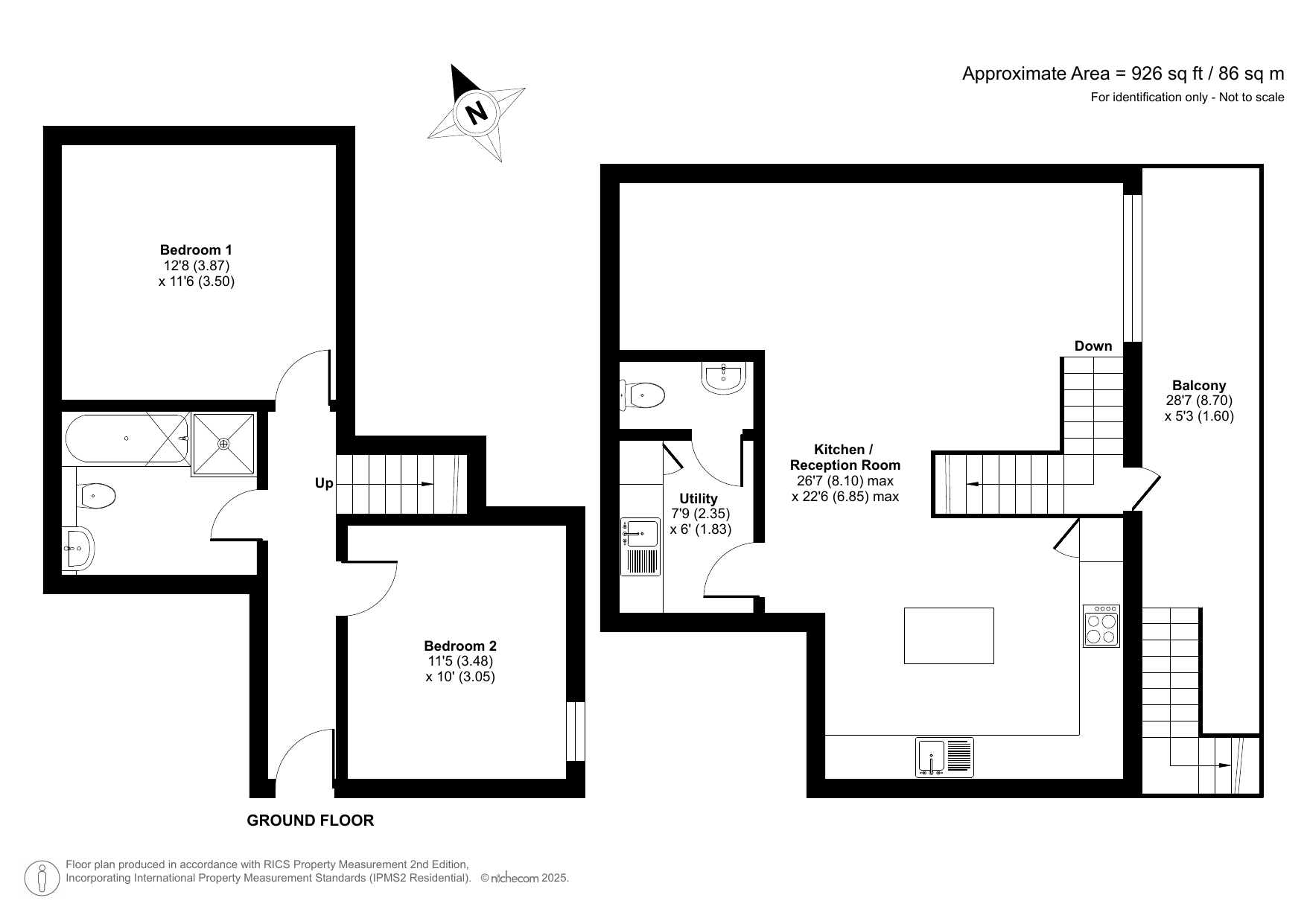
- Total floor area 79sqm
- 26' Living area
- Two double bedrooms
- Bathroom & separate wc
- Utility room
- Balcony
- Long lease
- Within walking distance of Sydenham high street and station
- Well located for the award winning Mayow Park and Wells Park
Rooms
Entrance HallPart opaque double glazed entrance door, doors to bedroom one and two, door to bathroom, stairs down to living area, carpet, coved ceiling, spotlights.
Bedroom OneRadiator, carpet, coved ceiling, spotlights.
Bedroom TwoDouble glazed window to front, radiator, carpet, coved ceiling, spotlights.
BathroomFour piece bathroom suite comprising of: panelled bath with mixer tap, enclosed shower cubicle with mixer shower over, tiled walls and door, inset wash hand basin with mixer tap and enclosed low level wc, heated towel rail, vinyl flooring, tiled walls, spotlights, extractor fan.
LoungeFull height and full length double glazed windows to front, three radiators, laminate flooring, open to kitchen area, coved ceiling, spotlights.
KitchenRange of fitted white high gloss wall and base units with work surface over, one and a half bowl stainless steel sink unit with mixer tap, integrated fridge/freezer, integrated dish washer, integrated microwave, oven, gas hob and extractor fan to remain, island with seating, tiled splash back, tiled flooring, door to utility room, coved ceiling, spotlights.
Utility RoomRange of fitted wall and base units with work surface over, one bowl stainless steel sink unit with mixer tap, pluming for washing machine, space for tumble dryer, tiled splash back, tiled flooring, coved ceiling, spotlights, door to wc.
WcRadiator, low level wc., wall mounted wash hand basin with mixer tap, tiled flooring, coved ceiling, spotlights.
Balcony
