Property Description
Guide price £400,000 - £450,000
Danson lane, Welling.
CHAIN FREE - attractive two-bedroom detached bungalow is situated in the popular South Welling area, conveniently located close to the town centre.
It benefits from a driveway with side access into the garden. Also potential to extend.
Offered in good decorative order with a modern shower room and kitchen, the property also features a detached garage and is available chain free, making it an ideal purchase for a smooth transaction.
- Detached bungalow
- Potential to extend
- Close proximity to town center and Grammar school.
- Modern shower room
- Lounge/ diner
- Spacious rear garden
- Driveway and garage
- No chain
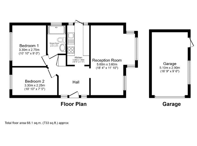
Rooms
Entrance Hall:Double glazed door to side, storage cupboard and carpet as fitted.
Lounge/Diner: 5.6m x 3.6mTwo double glazed windows to front and wood style laminate flooring.
Kitchen: 3.2m x 1.8mFitted with a range of wall and base units with contrasting work surfaces. Integrated oven, hob and filter hood. Localised tiled wall, vinyl flooring, double glazed windows and door to rear.
Bedroom 1: 3.3m x 2.74mDouble glazed window to rear and carpet as fitted.
Bedroom 2: 3.3m x 2.26mDouble glazed window to rear and carpet as fitted.
Bathroom:Fitted with a three piece suite comprising of vanity wash hand basin, low level wc and separate walk in shower cubicle. Chrome style heated towel rail, part tiled walls, tiled flooring and double glazed window to rear.
Garden:Mainly laid to lawn with patio area.
Parking:Driveway to side providing off street parking.
Garage:Garage to side with up and over door.
