Sold STC

4 bedroom bungalow for sale

Oakdene Avenue, Northumberland Heath, DA8
Freehold, Council Tax Band D
4 2 1

Guide Price £500,000 - £525,000

epc
Ref: NOR240184

Property Description

** GUIDE PRICE £500,000 - £525,000 ** Situated on a sought after road is this tastefully extended 4 bedroom semi detached chalet bungalow.

We feel this versatile property would suit a growing family. Boasting a large garden with "Man Cave", 2 bathrooms, open plan kitchen/dining room & driveway. This is not one to miss, your earliest viewing comes highly recommended.

  • 4 bedroom semi detached bungalow
  • 2 bathrooms
  • Off road parking
  • Open plan kitchen/diner
  • Sought after road
  • Loft conversion

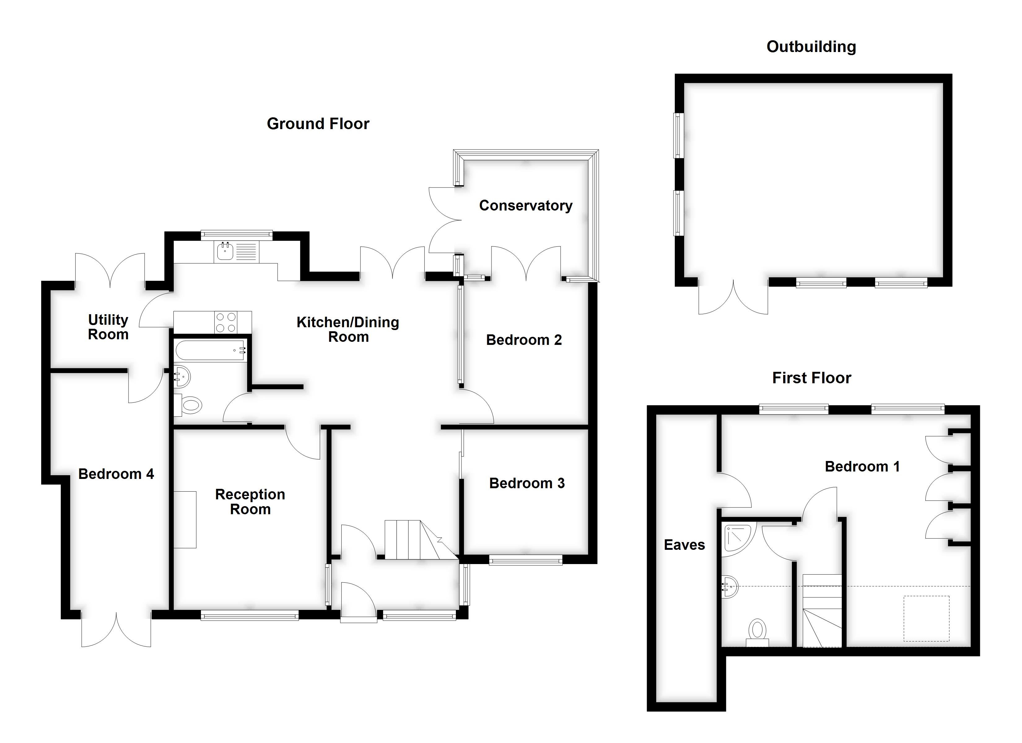
Rooms

Reception Room 3.38mx4m
Kitchen/Dining Room 5.5mx3.12m
Utility Room 2.62mx1.73m
Bathroom 1.63mx1.9m
Bedroom 2 2.74mx3.18m
Bedroom 3 2.74mx2.77m
Bedroom 4 2.18m widening to 2.62mx17.2
Conservatory 2.54mx2.87m
Bedroom 1 5.5mx5.18m
Bathroom 1.55mx2.06m
Outbuilding 5.72mx4.3m
Garden 8.97mx16.46m
Off Street Parking
Utilities:
Electricity
Ask Agent
Water
Ask Agent
Heating
Ask Agent
Gas
Ask Agent
Sewerage
Ask Agent
Rights & Restrictions:
Is the property listed?
Ask Agent
Are there any restrictions associated with the property?
Ask Agent
Are there any easements, servitudes, or wayleaves?
Ask Agent
Are there any public rights of way across the property or its boundaries?
Ask Agent
Flood and Erosion Risk:
Has there been any flooding in the last 5 years?
Ask Agent
Flooding sources affecting the property:
Ask Agent
Are there any flood defences:
Ask Agent

Video Tour

Video Tour

Request a Valuation

Every year we are invited to value over 10,000 properties for sale or to let. Please request your FREE, no obligation valuation - simply enter your postcode below.