Property Description
Set on the highly sought-after Peninsula Crescent, this beautifully presented park home offers an exceptional opportunity to enjoy relaxed, low-maintenance living in a truly picturesque setting. Positioned to take full advantage of stunning river views, the home provides a peaceful retreat where you can unwind and enjoy the ever-changing scenery from the comfort of your own space.
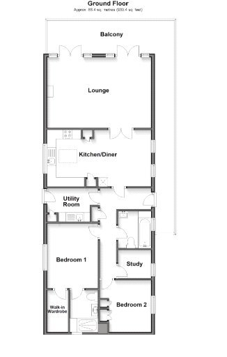
Designed with both comfort and practicality in mind, the property benefits from a private driveway with parking for two cars, a separate utility room, and a dedicated office — ideal for hobbies, working from home, or simply keeping everyday life organised. The generous master bedroom is a real highlight, complete with a dressing room and en-suite, creating a private and luxurious haven.
Located within a friendly and well-kept over-50s community, this home offers a welcoming lifestyle with a village atmosphere, perfect for those seeking tranquillity, security, and a strong sense of community. With easy-care living and beautiful surroundings, this is a wonderful place to slow down and truly enjoy life. Monthly pitch fee to be confirmed.
- River views
- Driveway with parking for two cars
- Separate utility room and office
- Located in a village setting
- Over-50s development
- Master bedroom with dressing room and en-suite
- Monthly pitch fee – £224.62
Rooms
Study/Office 1.9m x 1.75mCarpet, double glazed window to front, radiator, wall mounted desk.
Kitchen 6.43m x 3.1mLaminate flooring, wall to base units with roll top work surface over, double glazed window to front & rear, island, double glazed door to lounge, dishwasher, oven, sink drainer with mixer tap.
Lounge 5.52m x 3.84mDouble french doors leading to balcony.
Utility Room 2.84m x 1.75mLaminate flooring, units, double glazed door to rear.
Bedroom One 2.82m x 3.66mCarpet, radiator, double glazed window to side.
Dressing Room 2.36m x 1.07mCarpet, built in wardrobes, radiator.
Ensuite Bathroom 1.65m x 2.34mLaminate flooring, heated towel rail, walk in shower, double glazed window to front, extractor fan.
Bedroom Two 3m x 3.07mCarpet, radiator, built in wardrobes, double glazed window to front.
Bathroom 2.01m x 1.75mLaminate flooring, panelled bath with mixer tap & shower over, extractor fan, low level w/c, double glazed window to front, heated towel rail.
