Property Description
Located in the highly sought-after Springhead Parkway development in Gravesend, this beautifully presented 4-bedroom, 2-bathroom townhouse offers a contemporary lifestyle with space, comfort, and style. Perfectly suited for growing families or those looking for a spacious home with room to entertain, this property boasts generous living areas, high-quality finishes, and a convenient location with excellent transport links.
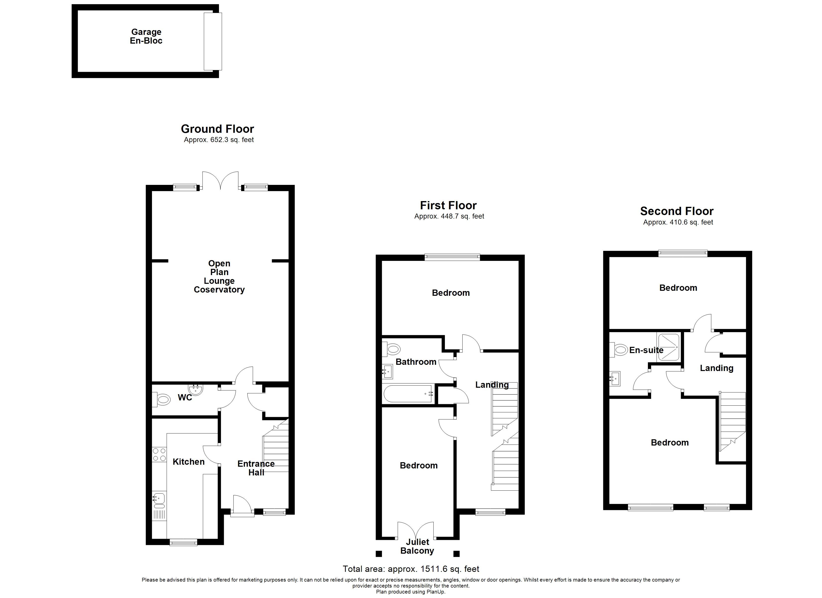
The ground floor of this exceptional townhouse features a bright and welcoming hallway that leads to a spacious kitchen. This modern, well-equipped kitchen offers plenty of storage, sleek countertops, and integrated appliances, making it ideal for preparing meals for family and friends. A convenient downstairs WC adds to the practicality of the ground floor, ensuring ease for both residents and guests. The ground floor also features a separate living room, providing a peaceful space to relax and unwind, with large windows allowing natural light to fill the room.
Moving up to the first floor, you’ll find two generously sized bedrooms, each offering plenty of space for wardrobes and additional furniture. The family bathroom is located on this floor, finished to a high standard with contemporary fixtures. This floor is ideal for children, guests, or even as a home office space, offering versatility to suit a variety of needs.
Two bedrooms are found on the top floor, with the master bedroom serves as a private retreat, with an en-suite bathroom that adds a touch of luxury. The master suite is spacious and filled with natural light, providing a peaceful haven to relax after a long day. The en-suite bathroom features modern fittings, a shower, and plenty of storage, offering a comfortable and convenient space just for you.
Outside, the property offers a low-maintenance garden, perfect for outdoor dining, relaxing, or enjoying the fresh air. The townhouse also benefits from allocated parking, providing secure and convenient parking spaces for residents.
The Springhead Parkway development is ideally located, with easy access to local amenities, schools, and beautiful parks, offering everything a family could need. Gravesend town centre is just a short distance away, providing a wide range of shopping, dining, and leisure options, along with excellent transport links, including the high-speed train service to London.
With its spacious layout, high-quality design, and prime location, this 4-bedroom townhouse on Springhead Parkway is the ideal home for those seeking modern living in a desirable area.
- Sought After Development
- Good Sized Bedrooms
- Allocated Parking and Garage
- Open Plan Living
- Downstairs W.C.
- Close to Station
Rooms
Hallway 5.8m x 2.24mWood floor. Radiator. Storage cupboard.
Ground Floor WC 2.29m x 1mRadiator. Wash hand basin. Low level WC. Laminate floor.
Lounge 7.09m x 4.55mDouble glazed window to rear. Double glazed skylight. Wood floor. 2 x Radiators.
Kitchen 4.24m x 2.29mDouble glazed window to front. Tiled floor. Integrated fridge/ freezer, dishwasher, washing machine, oven and hob with extractor. Water softener. Wall mounted boiler. Wall and base level cupboards with worktop surfaces over. Breakfast bar. Radiator. Spotlights.
Landing 5.08m x 2.16mDouble glazed window to front. Carpet. Radiator.
2nd Landing 2.18m x 2.06mCarpet. Radiator.
Master Bedroom 4.57m x 4.55mDouble glazed Juliet balcony to front. Carpet. Built in wardrobe. Double glazed window to front.
En Suite 2.41m x 2.16mWalk in shower. Tiled walls and floor. Spotlights. Radiator. Wash hand basin. Low level WC.
2nd Bedroom 4.57m x 3.3mDouble glazed window to rear. Carpet. Radiator.
3rd Bedroom 4.57m x 2.3mDouble glazed Juliet balcony to front. Carpet. Radiator.
4th Bedroom 4.57m x 2.57mDouble glazed window to rear. Carpet. Radiator.
Bathroom 2.36m x 2.2mTiled floor. Bath with overhead shower. Wash hand basin. Low level WC. Cupboards. Spotlights.
