Property Description
Fantastic second floor modern purpose built apartment offered chain free with one double bedroom, open plan living room/kitchen which is flooded with natural light throughout, balcony, double glazing, integrated appliances and entry phone set within a highly desirable location, a stone throw away from Sydenham Station with trains running frequent services to London Bridge,Canary Wharf, Victoria and the whole of the London Underground and conveniently located for local high street shops and amenities, the award winning Mayow Park and Crystal Palace Park
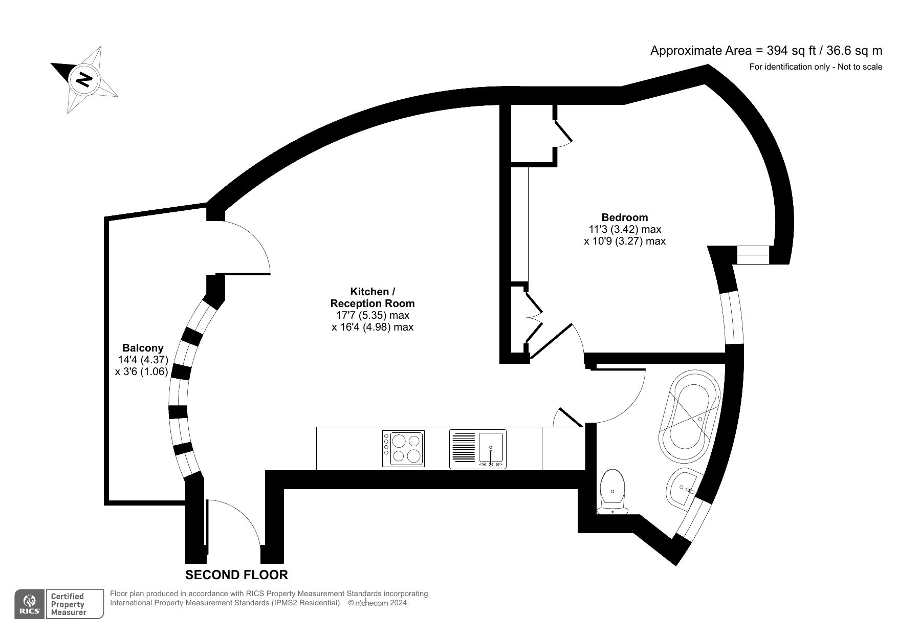
- One Double Bedroom
- Modern Purpose Built Apartment
- Chain Free
- Open Plan
- Share of Freehold
- Second Floor
- Double Glazing
- Balcony
- Entry Phone
- Integrated Appliances
- High Specification
- High street location
- Moments from Sydenham Station
- Conveniently located for local high street shops and amenities, the award winning Mayow Park and Crystal Palace Park
Rooms
Communal Entrance HallGlazed communal entrance, carpet, stairs to first floor.
Entrance HallWooden entrance door, entry phone, wood flooring, open to lounge/kitchen.
Lounge/Kitchen AreaLounge: Double glazed sliding door to balcony, feature brick wall, wood flooring with underfloor heating, Integrated Wired Speakers to the Lounge and a wall mounted Docking/Charging Station. spotlights. Kitchen: range of fitted wall and base units with work surface over, one bowl stainless steel sink unit with mixer tap, integrated fridge/freezer, washing machine and slimline dishwasher, fitted microwave, oven, hob and extractor fan to remain, wood flooring with under floor heating, spotlights.
BedroomDouble glazed windows to side, fitted wardrobes with overhead storage, wood flooring with under floor heating.
BathroomOpaque double glazed window to side, three piece bathroom suite comprising of: free standing bath with mixer tap and shower over, pedestal wash hand basin with mixer tap and enclosed low level wc, tiled flooring, part tiled walls.
