Property Description
**Guide Price: £875,000 - £900,000**
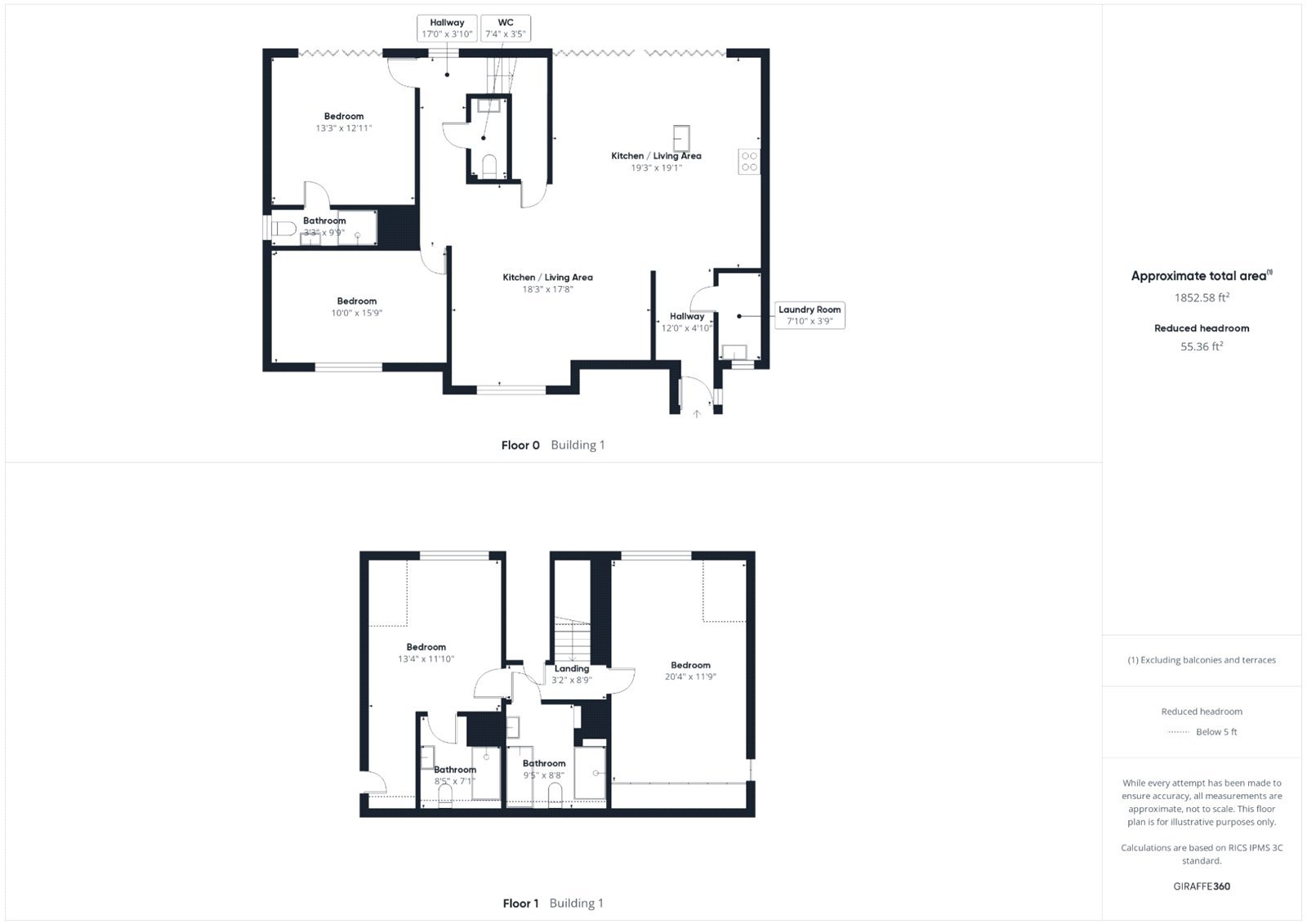
Immaculately Presented Four-Bedroom Detached Bungalow – Prime Blackfen Location.
Tucked away on a private road and offering an exceptional standard of finish throughout, this four double bedroom detached bungalow is a rare opportunity in the heart of Blackfen.
The property boasts a stunning bespoke kitchen, thoughtfully designed with high quality fittings and ample space for both cooking and entertaining. A spacious reception area creates the perfect setting for family life or hosting guests.
Accommodation includes four generously sized double bedrooms, three of which feature luxurious en-suite bathrooms, plus a separate WC for convenience.
Outside, the property benefits from a resin driveway with ample parking, complete with an EV charging point. The location offers excellent transport links and is just a short distance from Blackfen High Street and The Oval, as well as highly regarded local schools. Nature lovers will appreciate being close to Danson Park, with its beautiful green spaces and recreational facilities.
This superb home combines modern comfort, privacy and convenience – perfect for growing families or those seeking a high-quality bungalow in a sought-after area.
- Four Double Bedrooms
- Bespoke Kitchen
- Open Plan Living Area
- Private Road Access
- Resin Driveway with EV Charger
- Steam Room On the Ground Floor
- Solar Panels
- Underfloor Heating
Rooms
Kitchen/Lounge 9.04m x 8.33mDouble glazed entrance door to front, double glazed window to front with shutter blinds, bi-folding doors to rear, spotlights, modern bespoke kitchen with matching range of wall and base units incorporating cupboards, drawers and worktops, island with double butler sink cupboards and wine fridge, integrated appliances such as: dishwasher, microwave, fridge/freezer, oven and hob with filter hood above, stairs to first floor, understairs storage cupboard, underfloor heating, amtico flooring.
Utility Room 2.34m x 1.12mDouble glazed window to front with shutter blinds, matching range of wall and base units, plumbed for washing machine, sink with drawers, amtico flooring.
Ground Floor WC 2.2m x 1.02mLow level WC, vanity wash hand basin, part tiled walls, underfloor heating, amtico flooring.
Bedroom One 4.04m x 3.96mBi-folding doors to rear, fitted wardrobes and drawers, heating and cooling system, carpet.
En Suite Shower Room 2.87m x 0.94mDouble glazed frosted window to side, enclosed shower cubicle with steam shower, wash hand basin with storage under, low level WC, tiled walls and flooring.
Bedroom Four 4.78m x 3.05mDouble glazed window to front with shutter blinds, fitted wardrobes, heating and cooling system, carpet,
LandingVelux window, storage cupboard, carpet.
Bedroom Two 4.04m x 3.58mDouble glazed window to rear, walk in wardrobe, heating and cooling system, carpet.
En Suite Shower Room 2.6m x 2.06mWalk in shower, wash hand basin with storage under, low level WC, heated towel rail, part tiled walls, tiled flooring.
Bedroom Three 6.76m x 3.66mDouble glazed window to rear, fitted wardrobes, access to eaves, heating and cooling system, carpet.
Bathroom 2.82m x 2.6mFreestanding bath, walk in shower, wash hand basin with storage under, built in shelving, heated towel rail, part tiled walls, tiled flooring.
Rear GardenPaved patio, artificial lawn, side access, hot tub.
Cabin 6.25m x 5.33mBi-folding doors, two double glazed windows to side, power and light, vinyl flooring.
Front GardenResin drive providing off road parking, EV charger.
